Casa Térrea Isolada 85m²/quintal de 50m²/3 dorms. + lazer
Bairro Da Lagoa (Zona Oeste), Vargem Grande Paulista, São Paulo

Casa em Vargem Grande Paulista
Mobília: Não Mobiliado
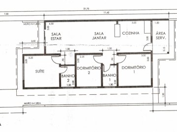
- 3 dormitórios
- sendo 1 suíte
- 1 banheiro
- 2 salas
- 3 garagens
Simular Financimento
Medidas
Área Total: 200 m² (R$ 2.544/m²)Área Privativa: 200 m²
Área Construída: 85 m²
Terreno Área Total: 15.000 m²
Localização
Vídeo
IPTU: R$ 55,00
Condomínio: R$ 470,00 (AO MÊS)
Compartilhe com seus amigos:
Descrição
Descubra seu novo lar! Esta encantadora casa térrea de 85m² é perfeita para quem busca conforto e praticidade. Com 3 dormitórios, incluindo uma suíte aconchegante, você terá espaço de sobra para toda a família. A casa conta com uma ampla área total de 200m², oferecendo um quintal grande ideal para momentos de lazer e diversão ao ar livre.
Localizada em um condomínio exclusivo com apenas 34 casas, você desfrutará de um ambiente tranquilo e seguro. E o melhor de tudo: estamos a apenas 1.500 metros do centro de Vargem Grande Paulista, facilitando o acesso a comércio, serviços e tudo o que você precisa no dia a dia.
Além disso, a casa possui vaga para 5 carros, garantindo comodidade para você e seus visitantes.
Lazer completo: Quadra com Gramado (tamanho oficial), Piscina Infantil e adulto (com cascata), 4 Chuscaqueira, Vestiário (Masculino e Feminino), Playground e Salão de Festas.
Toda fiação no condomínio subterrânea.
Venha conhecer e se apaixonar por este espaço que pode ser o seu novo lar!
Características
- Área de Serviço
- Câmeras de segurança
- Campo de Futebol
- Churrasqueira
- Cinema
- Condomínio Fechado
- Cozinha Americana
- Estacionamento para visitantes
- Fiação Elétrica Subterrânea
- Garagem
- Identificação Biométrica
- Jardim
- Permite Animais
- Piscina
- Playground
- Pomar
- Portaria 24 Horas
- Quadra Poliesportiva
- Salão de Festas
- Segurança Por Câmera, Internet e Telefonia
- Sistema de Interfonia
- Vestiários
- Vista Panorâmica
O que tem perto?
- Academia de Ginástica
- Açougue, Feiras e Supermercados
- Auto Mecanicas
- Banco 24 Horas
- Bancos
- Cabelereira
- Comércio
- Creche
- Dentista
- Escola
- Escola de Idioma
- Escola de Natação
- Escola Infantil
- Escolas Particulares
- Escolas Públicas
- Faculdade
- Farmácia
- Feiras Livres
- Floricultura/ Paisagismo
- Frutaria
- Hospital
- Igreja
- Lava Rápido
- Material de Construção
- Padaria
- Papelaria
- Pet Shop
- Pizzaria
- Ponto de Oníbus
- Posto de Gasolina
- Posto de Saúde
- Posto de Saúde - Ubs
- Praça
- Raposo Tavares
- Restaurante
- Shopping
- Supermercado
Mais informações
Imóveis Similares
- Cód. Referência: RF2122025
Casa em Vargem Grande Paulista
Bairro Da Lagoa / Vargem Grande Paulista - SP
R$ 535.000,00
Mais Detalhes - Cód. Referência: RF1992025
Casa térrea em Vargem Grande Paulista
Bairro Da Lagoa / Vargem Grande Paulista - SP
R$ 640.000,00
Mais Detalhes






































